深圳龙华区/荣超新时代广场/一手写字楼出售/现楼全球销售/欢迎来电咨询
扫描到手机,新闻随时看
扫一扫,用手机看文章
更加方便分享给朋友
荣超新时代广场,龙华区一手写字楼出售,特价1.6万/㎡,面积123平米起售,
开发商售楼处电话151-1226-5215陈经理(官方已认证电话、无中介费、中介勿扰)

【荣超新时代广场】
观澜唯一可售商业写字楼
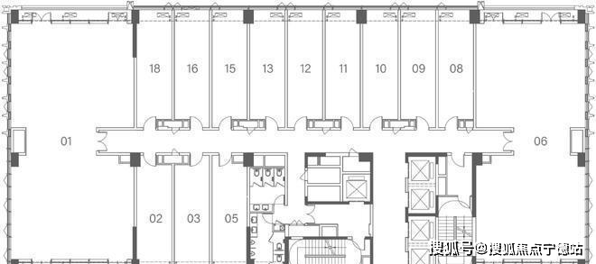
销售面积:123-1035平米
出售价钱:特价1.6万/㎡
交付时间:已入伙
交付标准:简装
地铁出口:22号线【观湖站】350米
龙华北部新中心,鹭湖中心城新地标
观澜未来唯一可售商业办公,现楼交付
专业写字楼开发商——荣超地产打造
123-253-499-1035㎡ 旗舰资产
地铁口•购物中心上•带阳台/上下水
荣超新时代广场-开发商热线电话151-1226-5215陈经理【电话已认证】
在租在售户型丨项目介绍丨最新信息丨优惠折扣|周边配套丨详细解答,
专业一对一热情服务,售楼处暂不接受临时到访客户, 请提前来电预约。







【城市中心,双核叠加汇聚产业精粹资源】:
龙华产核——鹭湖中心城地处龙华万亿级数字经济圈、梅观创新走廊的交汇中心,亦是龙华六大重点片区的核心枢纽
城市新核——鹭湖中心城定位为深圳北部新中心,龙华区“行政+科技+文化+生活”综合服务中心,城市精华配套、产业要素完善。
作为区政府所在地,其低密度生态环境、文体设施齐全[鹭湖四馆:龙华区图书馆、群艺馆、大剧院和科技馆]、豪宅小区聚集,非常宜居宜业,价格抗跌。

【总部中心,科创集群引领区域价值腾飞】:
观澜高新园——鹭湖中心城定位最前沿、发展最成熟、实力最强劲区域:上市企业数量占龙华区50%,占鹭湖中心城70%,是龙华上市公司最密集区域。
观澜高新园将构建 “BT+IT” (生物技术和信息技术)融合发展示范区,并依托上述龙头企业,吸引龙头企业及上下游企业,持续提升商务氛围与区域价值。
龙华荣超新时代广场-开发商销售中心/营销中心电话151-1226-5215陈经理,欢迎来电咨询。

【轻松进阶,鹭湖唯一1035㎡享整层权益】:
建面1035㎡区域内最低整层门槛,独立整层,不受外部干扰,办公形象高端且实用率高达75%14个独立红本单位,单套41㎡起,户型方正可任意组合,融资变现更灵活带上下水、带阳台,办公、接待组合更丰富多元。

【顶尖配套,鹭湖唯一大型购物中心】:
片区唯一大型购物中心,建面约3.1万㎡,提升整体形象的同时,可满足企业商务接待与员工就餐等一站式需求。

龙华荣超新时代广场便利的交通:
海、陆、空多维立体交通路网辐射粤港澳大湾区,距离地铁22号线(在建)观湖站350米,开车12分钟直达龙华中心,半小时内直抵深圳北站,35分钟直达福田中心区,以高效商务咫尺世界。
【海】:
海港码头:蛇口邮轮中心
【陆】:
主干道:环观南路、珠三角环线高速、沈海高速
【空】:
深圳宝安国际机场、香港国际机场
【轨】:
有轨电车:龙华有轨电车高新区东站
地铁线路:22号线(在建)观湖站
高铁站:深圳北站、平湖站。



深圳荣超新时代广场-开发商营销中心/招商处认证电话151-1226-5215陈经理(中介勿扰),
因为平时客户较多,看房请提前预约,避免临时无人接待,感谢您的配合,
欢迎来电咨询,我们将竭诚为您服务, 全程无任何中介费用,诚邀莅临品鉴。
声明:本文由入驻焦点开放平台的作者撰写,除焦点官方账号外,观点仅代表作者本人,不代表焦点立场。
