2026深圳水木一方大厦 甲级写字楼出售 南山区 地铁桃园站 全球盛大发售
扫描到手机,新闻随时看
扫一扫,用手机看文章
更加方便分享给朋友
水木一方大厦售楼处电话136-9163-9522陈经理(开发商已认证)
水木一方大厦-写字楼出售电话:136-9163-9522陈经理(直售无中介费)
水木一方大厦-写字楼销售热线:136-9163-9522陈经理(24小时预约热线)
温馨提示:看房需提前预约,感谢您的配合!!!
【水木一方大厦】
南山区政府旁,甲级写字楼出售
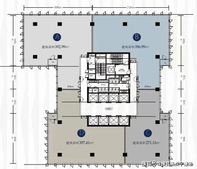
出售面积:271-396-790-1458平米
销售价格:3.58万/平米
交付标准:精装修
地铁出口:1/12号线【桃园站】A出口
【写字楼出售基础信息】
占地面积:7575.51㎡
建筑面积:61504.41㎡
超高使用率:75%
梯户比:一层9梯4户
A楼栋层数:23层
车位数量:220个
产品面积:271-397平甲级写字楼
电梯:9部三菱客梯
物业管理费:19.9元
空调:VRV 24小时(按电费收取)
办公标准层高:4.25m
大厦位置:深圳·南山荔香公园旁·1号线桃园地铁站A出口300米处
启迪国际科创中心-开发商热线电话151-1226-5215陈经理(电话已认证)
在租在售户型丨项目介绍丨最新信息丨优惠折扣丨周边配套丨详细解答,
专业一对一热情服务,售楼处暂不接受临时到访客户, 请提前来电预约。







【项目简介】
【水木一方大厦】位于深圳南山荔香公园旁,周边环境舒适宜居、配套齐全便捷。不仅拥有城、海、陆、空四维交通,无缝接驳世界,还拥享22万平米一览无遗的荔香公园全景景观。这里也是一个属于您的圈层、资源、事业的新平台。

【深圳南山高端商务住区】:
项目位于前海蛇口自贸区、后海总部区、深圳湾超级总部基地、南山科技园、宝安中心区等几大总部基地汇聚的焦点区位。世界顶尖人才、资本、产业资源,在此融通。这里不仅是南山的核心中轴,也是深圳最具价值的地段之一。

【全球性综合交通枢纽】
三横三纵城市路网:滨海大道、东滨路、深南大道、月亮湾大道、南山大道、南海大道
双地铁:项目距地铁1号线、12号线双地铁口,桃园站仅300米
轨道交通:深圳西站、西丽火车站(在建)
国际交通枢纽:宝安国际机场、深圳湾口岸、蛇口太子湾邮轮母港
南山启迪国际科创中心-写字楼出售/营销中心电话151-1226-5215陈经理,欢迎来电咨询。

【22万方生态公园】:
项目与荔香公园(22万平米)零距离,荔香公园向东延伸与深圳大学校园绿化相连,形成罕有的城市中心巨大面积绿化区。在这里,偶尔远眺放松工作心情,闲暇时,亦可楼下散步,调整状态。

【城市绿肺生态办公】:
水木一方大厦紧邻荔香公园,俯瞰22万方自然生态景观;

【15分钟步行生活圈】:
生活配套:田厦金牛广场、天虹商场、欢乐颂购物中心、家乐福,生活购物极其方便
市政配套:南山文体中心 (剧院、羽毛球馆、两个标准比赛游泳馆)、南山图书馆、南山博物馆等均在步行10分钟距离内。

深圳水木一方大厦-销售中心电话:136-9163-9522陈经理(中介勿扰)
深圳水木一方大厦-买卖咨询请拨打:136-9163-9522陈经理(售楼处已认证)
深圳水木一方大厦-全球销售热线:136-9163-9522陈经理(官方已认证)
开发商一手直售无中介费,诚邀莅临品鉴!!!
声明:本文由入驻焦点开放平台的作者撰写,除焦点官方账号外,观点仅代表作者本人,不代表焦点立场。
